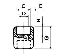
LUVA - CONEXÕES DE AÇO COM ENCAIXE PARA SOLDA
|
Diâmetro Nominal do Tubo |
Diâmetro do Encaixe |
Diâmetro Interno |
Espessura da Parede de Encaixe |
Espessura do Corpo |
Profundidade do Encaixe |
Comprimento |
Tolerâncias |
|
D |
C |
A |
E |
F |
|
3000 Lbs. |
6000 Lbs. |
9000 Lbs. |
3000 Lbs. |
6000 Lbs. |
9000 Lbs. |
3000 Lbs. |
6000 Lbs. |
9000 Lbs. |
B |
Luva
G |
G |
|
Máx. |
Mín. |
Máx. |
Mín. |
Máx. |
Mín. |
Mín |
Mín |
Mín |
|
1/8" |
10.82 10.67 |
7.59 6.07 |
4.80 3.20 |
- |
3.17 |
3.17 |
3.96 |
3.43 |
- |
- |
2.41 |
3.15 |
- |
9.65 |
25.65 |
1.52 |
|
1/4" |
14.35 14.10 |
10.00 8.48 |
7.11 5.59 |
- |
3.78 |
3.30 |
4.60 |
4.01 |
- |
- |
3.02 |
3.68 |
- |
25.65 |
1.52 |
|
3/8" |
17.78 17.53 |
13.28 11.76 |
9.88 8.36 |
- |
4.01 |
3.51 |
5.03 |
4.37 |
- |
- |
3.20 |
4.01 |
- |
25.65 |
3.05 |
|
1/2" |
21.97 21.72 |
16.58 16.04 |
12.55 11.02 |
7.16 5.64 |
4.67 |
4.09 |
5.97 |
5.18 |
9.35 |
8.18 |
3.73 |
4.78 |
7.47 |
28.96 |
3.05 |
|
3/4" |
27.30 27.05 |
21.69 20.17 |
16.31 14.78 |
11.79 10.26 |
4.90 |
4.27 |
6.96 |
6.05 |
9.78 |
8.56 |
3.91 |
5.56 |
7.82 |
12.70 |
35.05 |
3.05 |
|
1" |
34.04 33.78 |
27.41 25.88 |
21.46 19.94 |
15.98 14.45 |
5.69 |
4.98 |
7.92 |
6.93 |
11.38 |
9.96 |
4.55 |
6.35 |
9.09 |
38.10 |
4.06 |
|
1 1/4" |
42.80 42.54 |
35.81 34.49 |
30.23 28.70 |
23.52 22.00 |
6.07 |
5.28 |
7.92 |
6.93 |
12.14 |
10.62 |
4.85 |
6.35 |
9.70 |
38.10 |
4.06 |
|
1 1/2" |
48.69 48.64 |
41.65 40.13 |
34.75 33.22 |
28.70 27.18 |
6.35 |
5.54 |
8.92 |
7.80 |
12.70 |
11.13 |
5.03 |
7.14 |
10.16 |
38.10 |
4.06 |
|
2" |
61.37 61.11 |
53.26 51.74 |
43.61 42.09 |
38.94 37.41 |
6.93 |
6.05 |
10.92 |
9.50 |
13.84 |
12.12 |
5.54 |
8.74 |
11.07 |
15.75 |
50.55 |
4.06 |
|
2 1/2" |
74.19 73.81 |
64.24 61.19 |
- |
- |
8.76 |
7.67 |
- |
- |
- |
- |
7.01 |
- |
- |
50.55 |
5.08 |
|
3" |
90.17 89.79 |
79.45 75.40 |
- |
- |
9.52 |
8.31 |
- |
- |
- |
- |
7.62 |
- |
- |
50.55 |
5.08 |
|
4" |
115.82 115.44 |
103.78 100.64 |
- |
- |
10.59 |
9.35 |
- |
- |
- |
- |
8.55 |
- |
- |
19.05 |
57.15 |
5.08 |
|